16 HOMES UNDER AGREEMENT

MASHPEE (CAPE COD), MA – 34+/- Homes Abutting New Seabury to be Offered Individually

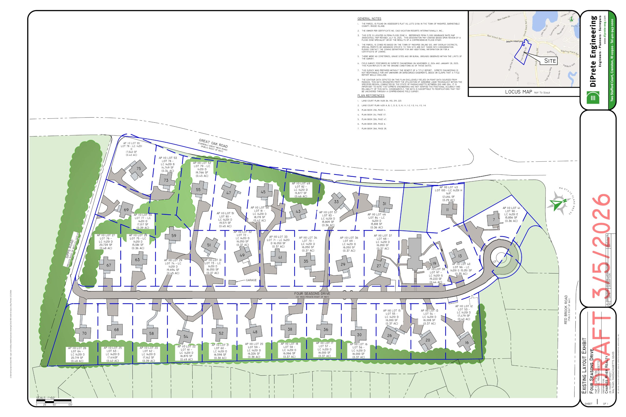
Property Address
Four Seasons Dr. & Sipps Rd., Mashpee, MA
Auction Reference No.
26-2185
Description

34+/- Homes f/k/a "Cape Cod Holiday Estates"

  • (33) 2-Bedroom, 2-Bath Homes (Units 16, 20, 26 & 75 have unfinished 2nd floors)
  • (1) 1-Bedroom, 2-Bath Home
  • (1) Office Pool House Building & (1) Recreation Center Building (16 Four Seasons Dr.)

Formerly known as "Cape Cod Holiday Estates", this premier location offers homes that directly abut the Private Enclave of New Seabury, situated between Falmouth and Hyannis, located less than three miles from South Cape Beach and Nantucket Sound. Each residence is set on approximately one-third-acre lot and includes a sun deck and patio.

The surrounding area provides various maritime activities, including boating and fishing in the Atlantic Ocean. Local marinas offer equipment rentals, deep-sea fishing charters, whale-watching excursions, and transportation to Nantucket Island and Martha's Vineyard.

Terms

INDIVIDUAL UNITS: 10% deposit of which $25,000 per unit must be presented in certified or bank check. Remainder of the 10% deposit in wire transfer, certified or bank check by 4pm ET on Monday, May 4, 2026. Balance in 30 days. 5% Buyer’s Premium will be added to the high bid & result will be the total purchase price. Other terms, if any, announced at the sale. All information derived from reliable sources believed correct, but not guaranteed. Buyers shall rely entirely on their own judgment and inspection. Announcements from the Auction Block take precedence over any previously printed material or any other oral statements made. JJManning Auctioneers is acting exclusively on behalf of Seller in this transaction.

Buyer's broker terms

Up to 2% Buyer’s Broker Commission offered. Mandatory 24-hour broker pre-registration. Visit “Brokers Register Buyers” link for full terms & registration page.

license
111

Join our Mailing List

Property Signup